Projekte
“San Clemente“ ist schon früh von Forschern erkundet worden: 1895 war Karl Sapper der erste Mayaforscher, der die Stätte dokumentierte und einen ersten Plan erstellte. Er beschrieb die Lage als sehr nahe zur alten Straße, die nach Melchor de Mencos – der Grenzstadt mit Belize – führte. Durch den Bau der neuen Trasse geriet die alte Straße in Vergessenheit und „San Clemente“ entfernte sich automatisch mehr und mehr von der Zivilisation. 1922 besuchte Sylvanus Morley San Clemente und jeweils 1924 und 1928 Frans Blom, der neues Aufmaß der Stätte anfertigte. 1930 erkundete Percy C. Madeira Yaxha und unternahm von dort eine Expedition nach San Clemente. 1958 kam William Bullard und realisierte den vierten Grundriss der modernen Zeit.
Karl Sapper, 1895 —————————— Frans Blom, 1928
Percy C. Madeira, 1931 —————————— Sylvanus Morley, 1937-38
1992 entdeckten die Wissenschaftler des „Triangulo Cultural“ die Stätte wieder, nachdem sie die Aufzeichnungen der Mayaforscher des 19. und frühen 20. Jahrhunderts eingesehen hatten. Die archäologische Stätte weist noch heute sehr viel sichtbare Originalarchitektur in Form von stuckierten Mayabögen und Wänden auf. Leider war die Stätte schon beim ersten Besuch durch Raubgräbertunnel sehr in ihrem Baubestand beeinträchtigt und litt auch in der Folgezeit unter weiteren „Besuchen“ von Raubgräbern.
Im Juli 1996 wurden in San Clemente im Zuge des Schutzprogramms (Programa de Rescate) die ersten Notmaßnahmen durchgeführt: Raubgräben wurden verfüllt, schwere, auf den Strukturen lastende Bäume wurden gefällt, dem Kollaps nahe Gebäude abgestützt.
Im Januar 2006 begann ein Projekt mit Hauptaugenmerk auf Erhaltung und Restaurierung gefährdeter Gebäude, finanziert aus Spendengeldern der deutschen Kreditanstalt für Wiederaufbau (KfW). Drei archäologische Arbeitsgruppen, ein Team von Restaurateuren und eine logistische Gruppe, insgesamt 65 Arbeiter und sechs Wissenschaftler, forschten hier über sieben Monate.
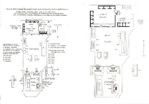
Die Stadtanlage von San Clemente weist eine Nord-Süd-Achse auf, die in drei Hauptsektoren unterteilt ist:
Die Arbeiten dieser ersten Periode beschränkten sich auf die nördliche Gruppe, welche sich aus zwei Höfen zusammensetzt, die von Palastarchitektur umgeben sind. Die Ausdehnung beträgt 75 m. in Ost-West-Richtung und 50 m. Nord-Süd. Der westliche Hof (Patio alto) ist gegenüber dem östlichen (Patio bajo) um 7 m. erhöht. Beide waren durch eine überdachte Treppe verbunden und nach Osten hin geöffnet – in Richtung des fruchtbaren Tals und der aufgehenden Sonne.
Blick vom Patio alto über den Patio bajo und das fruchtbare Tal
Über einen überdachten Gang ist der Patio bajo mit dem zentralen Platz verbunden. Den Übergang der Palastakropolis zum zentralen Platz bildet das spektakulärste Gebäude von San Clemente – Struktur III, eine 62 m. lange Palastkonstruktion. Das Gebäude wurde im Laufe der Zeit mehrfach modifiziert. Die letzte Version bildet eine zweistöckige Palastreihe, die in der Endklassik konstruiert wurde. Hier befindet sich im zentralen Innenraum, von dem aus man über den zentralen Platz in Richtung Ballspielplatz und Tempelpyramiden schaut, ein steinerner Thron. Eine monumentale Treppe von 26 m Länge und 2,80 m Höhe führt hinunter zum zentralen Platz.
Rechts sehen Sie eine !idealisierte Rekonstruktion des Palastes I. Zum Vergrößern aufs Bild klicken.
Um den Fortschritt der Arbeiten zu sehen, klicken Sie bitte auf die Knöpfe unterhalb des Bildes!





Während der archäologischen Arbeiten an der Treppe wurden vier Blöcke mit skulptierten Figuren entdeckt (gefesselte Gefangene), die sich in erstaunlich gutem Zustand befinden.
Zum Vergrößern auf die Bilder klicken.



Die wichtigste Intervention und ein entscheidender Grund für dieses Projekt war die Stabilisierung und Konservierung der nördlichen und westlichen Außenmauern der erhöhten Palastakropolis – zwei immense Wände, die sich in der Gefahr befanden zu kollabieren und damit für immer verloren zu gehen.
Um den Fortschritt der Arbeiten zu sehen, klicken Sie bitte auf die Knöpfe unterhalb des Bildes!





Das Projekt “San Clemente” wurde innerhalb von sechs Monaten durchgeführt mit einem siebten Monat zur Dokumentation und Analyse der Arbeiten. Im Schnitt nahmen 63 Arbeiter, drei Archäologen (die insgesamt mehr als 50,000 Stücke freilegten) und ein Architekt (Denkmalpfleger)teil. Es wurden 28 Raubgräben dokumentiert und verfüllt. Die Kosten für die Löhne der Arbeiten beliefen sich auf insgesamt 123,425 Euro, wovon 30% für die archäologischen Arbeiten genutzt wurden, 37,5% für Restaurationsarbeiten und 32,5% für Logistik und Administration.
25 Raubgräben wurden verfüllt. 14 vertikale Forschungsschächte wurden in den Plätzen und Höfen ausgehoben.
Wichtige Entdeckungen:
Unter den Trümmern der kollabierten Gebäudeteile von Gebäude III, die sich innerhalb der zusammengestürzten Palastkonstruktionen und davor befanden, befanden sich verschiedene Blöcke mit hervorragend gearbeiteten Reliefs. Ein Zeichen dafür, dass die Fassaden der Paläste reich verziert waren.
Es wurden 65 Keramikfiguren gefunden, wovon 55 in die Endklassik datieren. 81 Fundstücke lithischer Herkunft. Außerdem Kleinobjekte aus Knochen, Muscheln, Schnecken und Jade. Eine vollkommen erhaltene Keramikvase aus der Spätklassik, 30 Stücke aus der Endklassik bestehend aus dreifüßigen Vasen, polychromen Vasen, dreifüßigen Schalen, dreifüßigen Tellern, flachen Tellern, einem kugelförmiger Krug, vier Miniaturen und ein Weihrauchgefäß.


Zum Vergrößern
auf die Bilder klicken.
Forschungsergebnisse:
Die bisherigen Forschungsergebnisse lassen den Schluss zu, dass die Konstruktion des monumentalen Zentrums San Clementes in der frühen Klassik begann und dass die Stätte bis in die Endklassik durchgängig bewohnt war. Der Höhepunkt der Entwicklung lag zwischen 850 und 950 n. Chr. Zur gleichen Zeit florieren ebenfalls nahe Stadtstaaten wie Yaxha und Nakum. Wir sprechen hier von einer Zeit zu der Tikal und andere Stadtstaaten, die zuvor die klassische Periode dominierten, bereits aufgegeben worden waren.
Um den Fortschritt der Arbeiten zu sehen, klicken Sie bitte auf die Knöpfe unterhalb des Bildes!





Denkmalpflegerische Arbeiten an diesen beiden Strukturen wurden im Juli 2007 vorgenommen. Die Dokumentation hierzu folgt in Kürze.
Ebenso wie in der Stätte „La Blanca“ sollen in „San Clemente“ die Interessen von Denkmalpflege und sanftem Tourismus zusammengeführt werden. Grundlage hierfür ist eine Kooperation mit dem nahegelegenen Dorf Aguadas Nuevas, dessen Bewohner von der Organisation eines nachhaltigen Tourismus profitieren sollen. Man versucht die Einwohner für die Erhaltung der Stätte zu sensibilisieren und erhofft sich durch die Identifikation der lokalen Bevölkerung mit „ihrer Mayastätte“ einen aktiven Schutz vor weiteren Zerstörungen durch Raubgräber. Um der Bevölkerung die Möglichkeiten entsprechender Angebote und Aktivitäten aufzuzeigen, wurden vom Projekt Feierlichkeiten mit Zeremonien von Schamanen organisiert. Diese ersten touristischen Aktionen sowie mehrere Besuche des Bürgermeisters von Flores (der Hauptstadt des Municipios), der sich sonst eher selten in diesen abgelegenen Teil seines Regierungsbezirks begibt, haben schon jetzt einen nachhaltigen Eindruck vor Ort hinterlassen. Es bleibt zu hoffen, dass die ansässige Bevölkerung durch diese „Auftaktveranstaltungen“ auch langfristig ein Bewusstsein für ihr kulturelles Erbe festigt. Dazu werden sicher noch weitere Unternehmungen durch die Projektpartner nötig sein – hier sind langfristige Bande zwischen den Mitarbeitern des Projekts „Triangulo Cultural“ und den Bewohnern vor Ort gefragt, um den Erfolg dieses Konzepts sicherzustellen.